S-705 Serisi
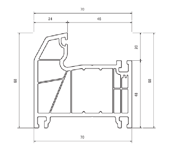
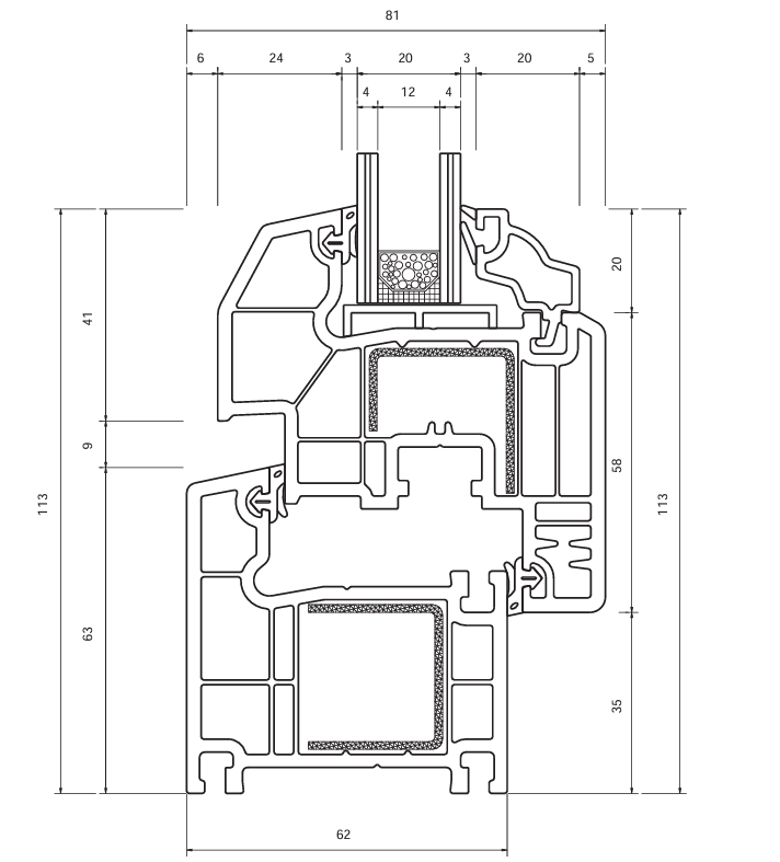
70 mm. 5 Odacıklı Profil
Alüminyum Sistem | 2026
Ürün Bilgileri
- • 5 odacıklı ve 70 mm. yapı derinliği ile mükemmel ses ve ısı yalıtımı, rahat dinlenme ortamı sağlar.
- • Damlalık kanat sayesinde maksimum su tahliyesi ve sızdırmazlık sağlar.
- • Maksimum sızdırmazlık ve estetik görünüm yüzeyi.
- • Profilin geniş odacık yapısı ve galvaniz destek sac kullanımıyla birlikte dış etkilere karşı yüksek dayanım sağlar.
- • 4 mm’den 32 mm’ye kadar cam aralığı uygulamalarına uygun profil yapısına sahiptir.
- • Kuvvetlendirilmiş kanat yapısı problemsiz aksesuar montajını sağlar.
- • 4 camlı damlalık dizaynı sayesinde estetik görünüm sağlar.
- • Profillerde ovalleştirilmiş kenarlar estetik görünüm sağlar.
- • Yanardağı su tahliye ve havalandırma kanalları gizlidir.
- • Tek kanat sistemleri ile sabit kanatların cam toplam maksimum rüzgâr yüküne karşı dayanıklılığı artırılmıştır.
- • 2’li eğim yüzeyi ile mükemmel kontrollü su tahliyesi için kolay temizlenebilir ilave su hazneli oval iç eğim yüzeyi.
Teknik Özellikler
| Profil Kalınlığı | 2 mm |
| Malzeme | 6063 T6 Alüminyum |
| Yüzey İşlemi | Elektrostatik Boya |
| Contalar | EPDM Fitil |
| Yük Taşıma Kapasitesi | 150 kg/m² |
Sistem Bileşenleri
- Ana Taşıyıcı Profiller
- Paslanmaz Menteşeler
- Hidrolik Amortisörler
- Kilit Mekanizması